首页 > 项目 > 山西清徐地区平地光伏安装计划

山西清徐地区平地光伏安装计划

业主发布
人工审核
施工中
报价中
项目描述
联系方式 该项目来源于钢构宝APP,联系业主电话请下载钢构宝APP,或咨询钢构宝客服4001392998/四零零--一三九--二九九八 https://www.zwggb.com
订单编号 1376541445924
更新时间 2025-12-29 16:52:39
订单类型 光伏能源
项目地址 山西太原市清徐县经济开发区
总面积 10000.00㎡
项目描述
山西清徐地区平地光伏安装计划
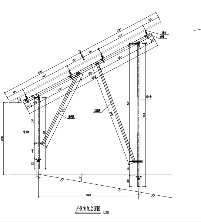
项目内容:工程量约2兆,组件采用620光伏板子,其尺寸为:2382*1134*30mm,前后桩,高度有0.5米和2米,支架都是小料,脚踩料,施工方带随手工具现场安装组件,详情可参考现场照片。
已经开工,随时进场,固定单价,完活人走账清,请山西清徐地区就近的施工方联系我。
询价区域 河北、山西
项目图纸及资料
山西清徐地区平地光伏安装..._资料1.jpg
下载
山西清徐地区平地光伏安装..._资料2.jpg
下载
山西清徐地区平地光伏安装..._资料3.jpg
下载
项目图片
山西热门推荐
山西运城10...
总面积:10000.00...
地址:山西运城市河津...
总包发布
人工审核
待开工
该项目包含:
钢结构
方钢
建筑钢材
防火涂料
涂料
喷涂设备
防火工程
建筑施工
喷漆工艺
山西太原公寓...
总面积:1000.00㎡
地址:山西太原市小店...
该项目包含:
门窗工程
安装工程
型材
窗户
玻璃
铝制品
建筑钢材
山西运城市A...
总面积:2000.00㎡
地址:山西运城市盐湖...
业主发布
人工审核
待开工
该项目包含:
墙板安装
建筑板材
城市建设
墙体结构
建筑施工
建筑工具
宿舍楼
山西太原不锈...
总面积:4000.00㎡
地址:山西太原市尖草...
独家直采
人工审核
待开工
该项目包含:
防火工程
厂房
建筑钢材
厂房设备
电气工程
电缆电线
山西忻州市农...
总面积:10000.00...
地址:山西忻州市定襄...
业主发布
人工审核
待开工
该项目包含:
光伏工程
安装工程
建筑施工
建筑板材
山西大同医院...
总面积:15678.00...
地址:山西大同市灵丘...
新建项目
该项目包含:
装饰装修
综合建筑
建筑装修
水电工程
建设工程
灯材
猜你喜欢
宁夏中卫市7...
总面积:10000.00...
地址:宁夏中卫市沙坡...
业主发布
人工审核
施工中
该项目包含:
光伏工程
砂瓦
安装工程
建筑施工
钢筋工程
建筑板材
建筑钢材
建筑工具
柱梁结构
桩基工程
河南南阳工商...
总面积:40000.00...
地址:河南南阳市邓州...
业主发布
图纸审核
待开工
该项目包含:
光伏工程
彩钢结构
砂瓦
商业建筑
建筑钢材
屋面工程
建筑施工
建筑工具
可再生能源
安徽合肥渔光...
总面积:10000.00...
地址:安徽合肥市肥东...
业主发布
现场审核
施工中
该项目包含:
光伏工程
砂瓦
建筑施工
建筑工具
桩基工程
河北承德柔性...
总面积:5000.00㎡
地址:河北承德市承德...
总包发布
现场审核
待开工
该项目包含:
光伏工程
砂瓦
租赁服务
建筑施工
安装工程
建筑板材
房屋建筑
陕西榆林地区...
总面积:10000.00...
地址:陕西榆林市府谷...
业主发布
人工审核
施工中
该项目包含:
光伏工程
林业工程
建筑施工
安装工程
建筑板材
建筑工具
广东揭阳市3...
总面积:10000.00...
地址:广东揭阳市普宁...
筹建项目
系统审核
待开工
该项目包含:
光伏工程
住宅建筑
建设工程
发电设备
机械设备