| 联系方式 | 该项目来源于钢构宝APP,联系业主电话请下载钢构宝APP,或咨询钢构宝客服4001392998/四零零--一三九--二九九八 https://www.zwggb.com |
| 订单编号 | 1376503717482 |
| 更新时间 | 2025-12-10 17:14:16 |
| 订单类型 | 光伏能源 |
| 项目地址 | 内蒙古巴彦淖尔市乌拉特前旗经济开发区 |
| 总面积 | 10000.00㎡ |
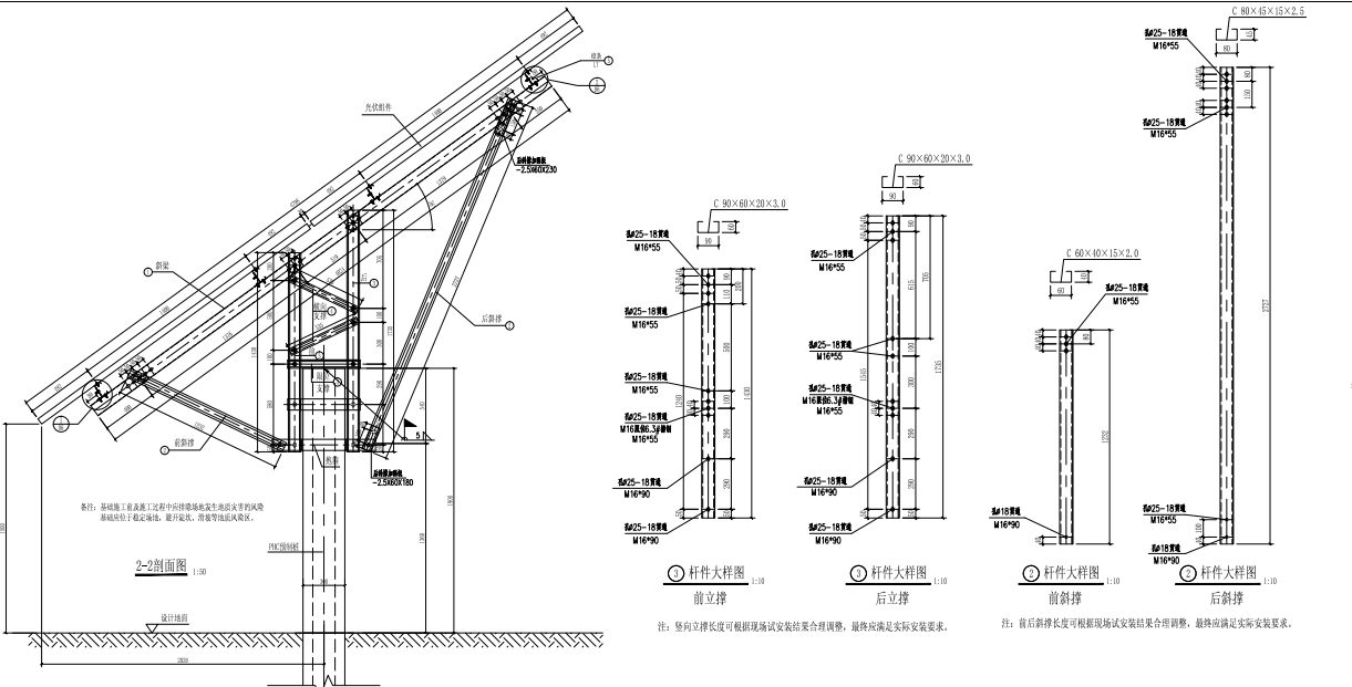
| 项目描述 | 内蒙古乌拉特前旗平地光伏组件安装计划,项目内容: 总工程量约200MW,组件高度1.5 m,组件尺寸2384*1303mm,多杆悬臂柱结构,详情可参考施工图纸,施工方只用安装光伏板。 目前还剩一个多月的活了,按进度结款,做完结75%,验收后结尾款,包住和保险,吃食堂,详情面议,请内蒙古乌拉特前旗就近有兴趣的施工方联系我。 |
| 询价区域 | 天津、河北、山西、内蒙古 |
| 项目图纸及资料 | |
| 项目图片 |
|




