| 联系方式 | 该项目来源于钢构宝APP,联系业主电话请下载钢构宝APP,或咨询钢构宝客服4001392998/四零零--一三九--二九九八 https://www.zwggb.com |
| 订单编号 | 1432577136767 |
| 订单类型 | 加工制造 |
| 项目地址 | 江西吉安市吉州区工业园区 |
| 总重量 | 22.00T(过磅) |
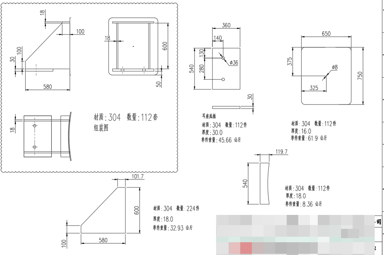
| 项目描述 | 1、江西吉安某单位求购不锈钢热轧平板,材质304/NO.1,规格厚度30mm*1500/1800宽,采购量22吨,要求正规大厂的 2、可以切割的话直接切割成需要的形状,价格合适可长期合作,请江西就近有现货厂家联系报价含税含运输 |
| 询价区域 | 江西 |
| 项目图片 |
|




