
| 联系方式 | 该项目来源于钢构宝APP,联系业主电话请下载钢构宝APP,或咨询钢构宝客服4001392998/四零零--一三九--二九九八 https://www.zwggb.com |
| 订单编号 | 1432546104281 |
| 更新时间 | 2026-04-16 |
| 订单类型 | 钢构工程 |
| 项目地址 | 海南儋州市洋浦经济开发区腾洋路 |
| 总面积 | 50000.00㎡ |
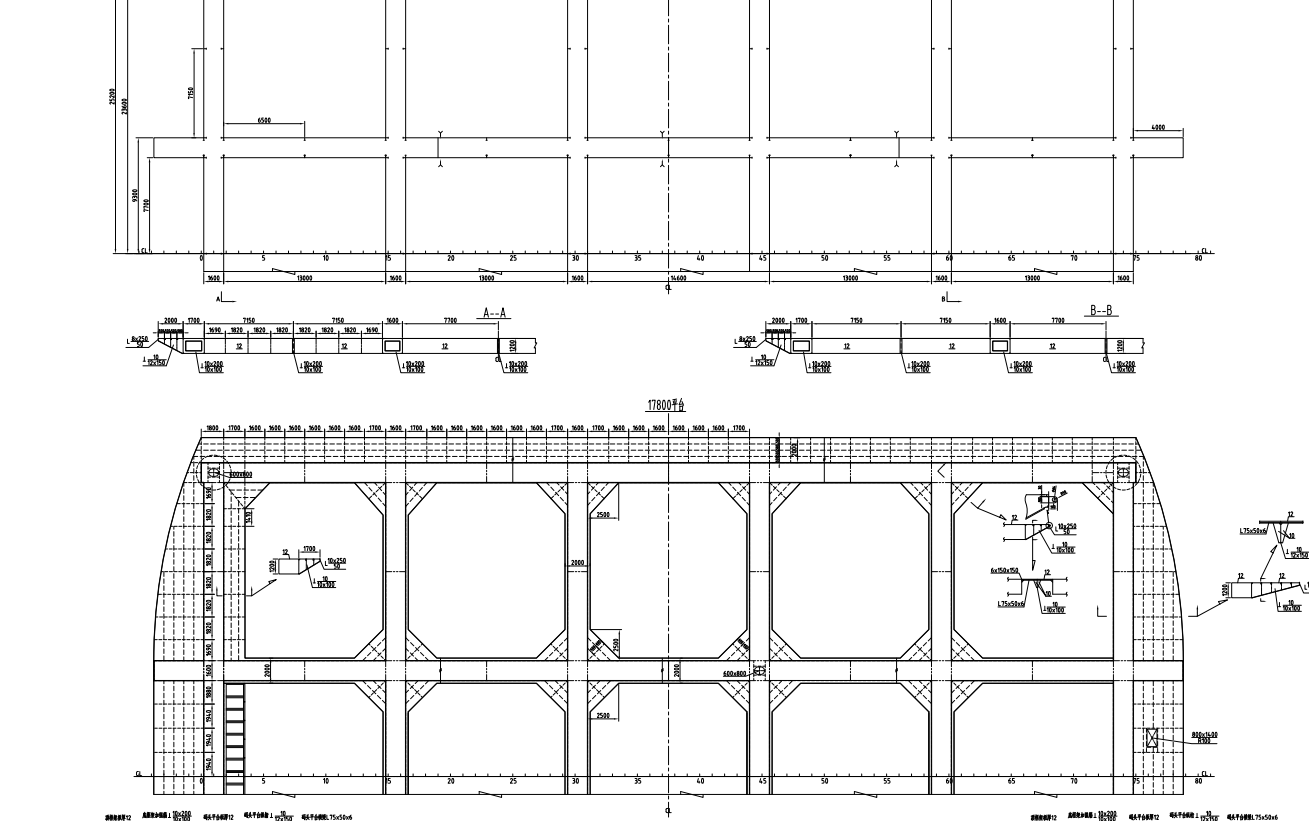
| 项目描述 | 1、海南儋州钢结构养殖平台建设项目,单个网箱长80多米,宽50多米,高17.8米,总共1300个。 2、施工方主要负责车间构件下料,焊接,打磨油漆,制作成品构件,现场安装等工作,甲方提供加工场所,主材,涂料,机械,食宿和保险。 3、现场安装内容包括钢结构房子,光伏,通讯基站,养殖网箱和平台,量大,纯劳务外包,具体要求请参考图纸沟通合作,联系人:刘总。 |
| 询价区域 | 全国 |
| 项目图片 |
|





