| 联系方式 | 该项目来源于钢构宝APP,联系业主电话请下载钢构宝APP,或咨询钢构宝客服4001392998/四零零--一三九--二九九八 https://www.zwggb.com |
| 订单编号 | 1432537748513 |
| 更新时间 | 今日发布 |
| 订单类型 | 幕墙门窗 |
| 项目地址 | 广东惠州市龙门县工业园区 |
| 总面积 | 2000.00㎡ |
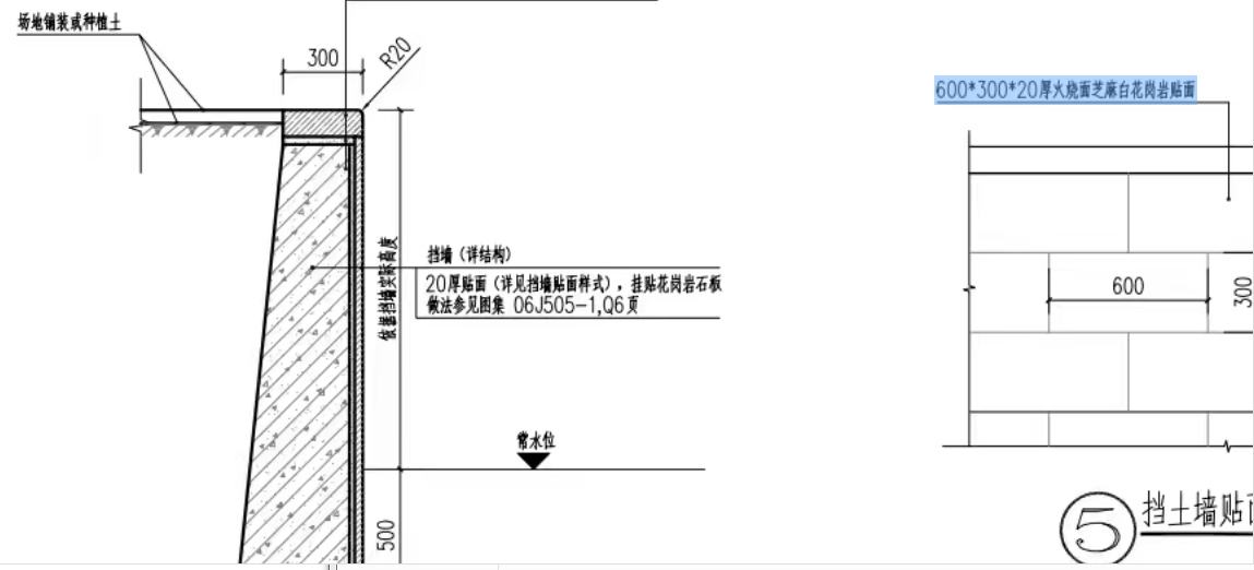
| 项目描述 | 1、广东惠州挡土墙石材安装工程,项目工程量有2000平方,高度有2米多,采用600*300*20厚火烧面芝麻白花岗岩贴面,施工方负责人工带工具,只用挂板,有图片做参考 2、材料还没到,预计十天左右可以进场,固定单价包干,款项直接和我方对接,按工程进度结算,请在惠州本地施工方联系我 |
| 询价区域 | 广东 |
| 项目图片 |
|




