| 联系方式 | 该项目来源于钢构宝APP,联系业主电话请下载钢构宝APP,或咨询钢构宝客服4001392998/四零零--一三九--二九九八 https://www.zwggb.com |
| 订单编号 | 1376465621813 |
| 更新时间 | 2025-12-01 14:03:08 |
| 订单类型 | 光伏能源 |
| 项目地址 | 山东泰安市肥城市经济开发区 |
| 总面积 | 10000.00㎡ |
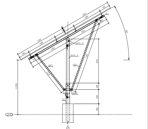
| 项目描述 | 山东肥城地区光伏组件安装项目 项目内容:工程量约30兆,光伏组件规格型号为:2384×1303×33mm;组件排列方式:2X14、2X7 阵列,桩高2.5m,详情可见图纸和现场视频;施工方带随手工具主要负责安装檩条和光伏板。 已经开工,随时经常,吃住自理,固定单价,滚动结款,第一个月80%,次月开始100%,详情面议,请山东肥城就近有意向的施工方联系我合作。 |
| 询价区域 | 上海、江苏、山东、安徽、浙江 |
| 项目图纸及资料 | |
| 项目图片 |
|




