| 联系方式 | 该项目来源于钢构宝APP,联系业主电话请下载钢构宝APP,或咨询钢构宝客服4001392998/四零零--一三九--二九九八 https://www.zwggb.com |
| 订单编号 | 1376303578222 |
| 更新时间 | 2025-11-28 15:32:54 |
| 订单类型 | 光伏能源 |
| 项目地址 | 内蒙古通辽市霍林郭勒市建矿路 |
| 总面积 | 10000.00㎡ |
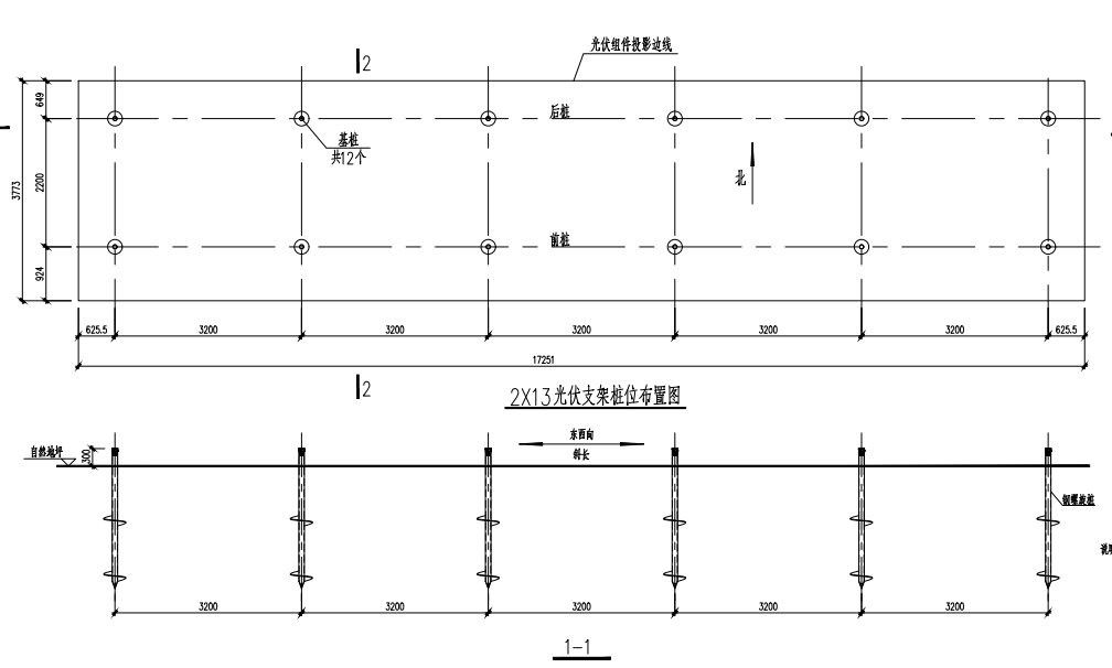
| 项目描述 | 内蒙古霍林郭勒市平地光伏安装工程 1、内蒙古霍林郭勒市平地光伏项目,工程量差不多有一两兆,前后桩,组件尺寸是2384*1303*33,26片板一组。 2、清工外包,施工方负责上板子和拉筋,U型卡,需要固定檩条,我方提供住宿和保险,款项和我方对接,固定单价包干,随时进场。 |
| 询价区域 | 内蒙古 |
| 项目图纸及资料 |
内蒙古霍林郭勒市平地光伏..._资料1.pdf |
| 项目图片 |
|




