| 联系方式 | 该项目来源于钢构宝APP,联系业主电话请下载钢构宝APP,或咨询钢构宝客服4001392998/四零零--一三九--二九九八 https://www.zwggb.com |
| 订单编号 | 1376276776273 |
| 更新时间 | 2025-11-25 11:48:47 |
| 订单类型 | 光伏能源 |
| 项目地址 | 北京北京市丰台区郭公庄 |
| 总面积 | 10000.00㎡ |
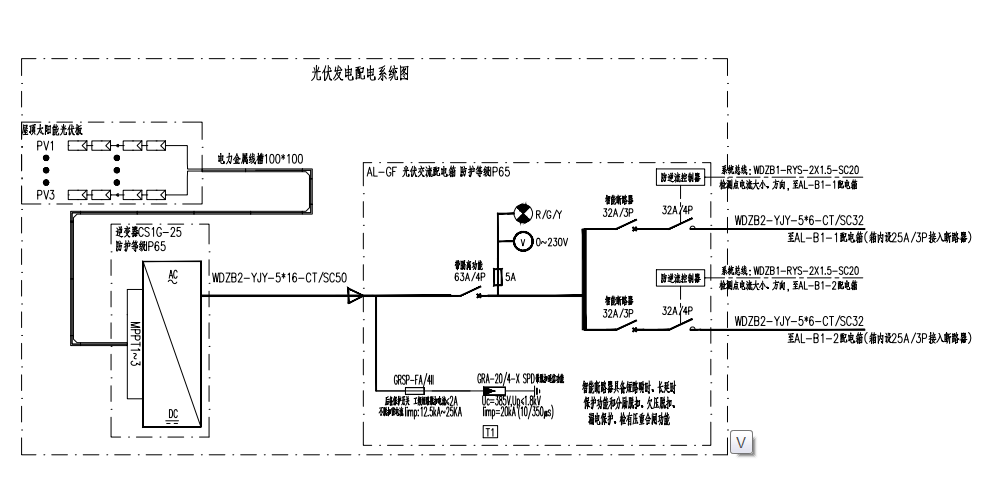
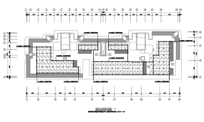
| 项目描述 | 北京丰台地区分布式光伏安装计划 项目内容:一共有17个住宅和综合楼屋顶上安装光伏,平均每个屋顶面积约700多平方/栋;采用550wp单晶硅电池组件,每串光伏组件串由15-24块电池板组成,详情可参考图纸,材料我方提供到现场。 施工方带随手工具和自带辅助机械等,现场安装光伏组件接线等全套工序,清包工,价格合适随时进场,请北京就近地区专业的施工队伍带价联系我。 |
| 询价区域 | 北京、天津、河北 |
| 项目图纸及资料 | |
| 项目图片 |
|




