| 联系方式 | 该项目来源于钢构宝APP,联系业主电话请下载钢构宝APP,或咨询钢构宝客服4001392998/四零零--一三九--二九九八 https://www.zwggb.com |
| 订单编号 | 1376047324474 |
| 更新时间 | 2025-11-04 10:11 |
| 订单类型 | 装修装饰 |
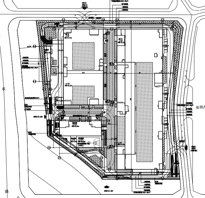
| 项目地址 | 广东深圳市光明新区凤凰光侨路 |
| 总面积 | 159415.00㎡ |
| 项目描述 | 1、广东深圳智能制造产业园建设项目,主要建设内容包含厂房,宿舍,仓库,商业建筑,食堂,便民服务站,社区警务室等,总建设面积159415平方。 2、负责施工内容包含水泥砂浆,防水、防滑地砖、细石混凝土、防静电地板、地坪漆、涂料保温墙面、干挂岩板、无机涂料、不锈钢踢脚 3、铝扣板、吸音吊顶、防潮石膏吊顶,门窗工程,钢楼梯/爬梯、扶手栏杆制安等装饰装修工程,项目负责人:赵工。 |
| 询价区域 | 全国 |
| 项目图纸及资料 | |
| 项目图片 |
|




