| 联系方式 | 该项目来源于钢构宝APP,联系业主电话请下载钢构宝APP,或咨询钢构宝客服4001392998/四零零--一三九--二九九八 https://www.zwggb.com |
| 订单编号 | 1376037533584 |
| 更新时间 | 2025-10-23 15:19:01 |
| 订单类型 | 工程总包 |
| 项目地址 | 广东东莞市虎门镇产业园 |
| 总面积 | 70489.19㎡ |
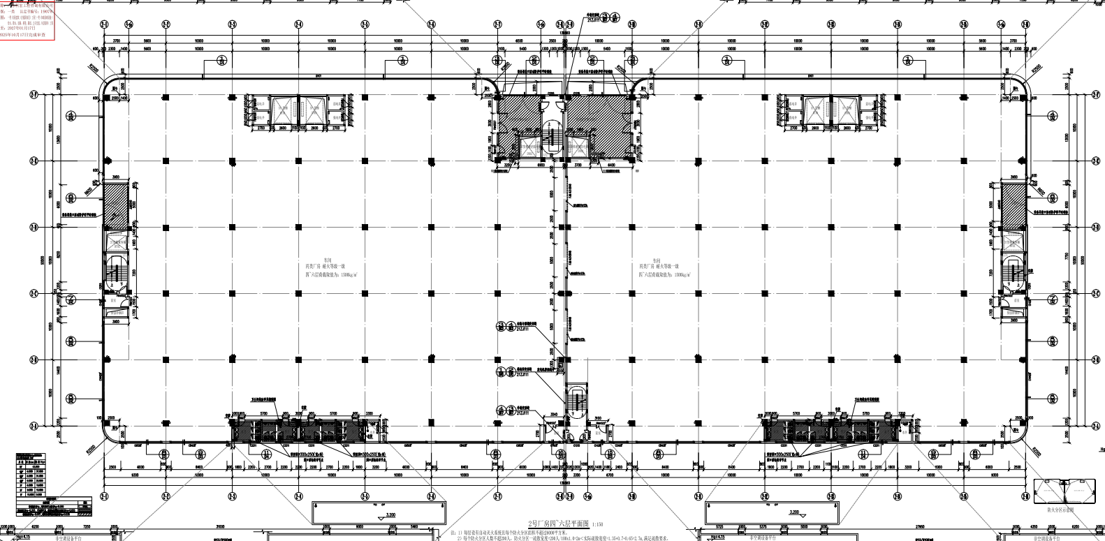
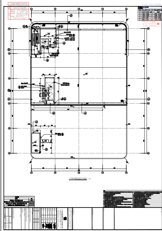
| 项目描述 | 1、广东东莞市虎门镇白沙智造产业园建设项目,拟建一栋9层研发楼,一栋6层厂房,地下室1层,总建筑面积70489.19平方米,最高44.85米,最大跨度10米。其中1号研发楼14594.41平方米,2号厂房45672平方米,3号地下室10222.78平方米。 2、施工内容包括基坑支护、建筑工程、装饰工程、钢结构工程、幕墙工程、电气工程、给排水、消防工程、通风工程、室外管网工程、室内外标志系统、抗震支架工程、电梯工程等,具体要求及工程量见图纸、清单。 |
| 询价区域 | 全国 |
| 项目图纸及资料 | |
| 项目图片 |
|




