| 联系方式 | 该项目来源于钢构宝APP,联系业主电话请下载钢构宝APP,或咨询钢构宝客服4001392998/四零零--一三九--二九九八 https://www.zwggb.com |
| 订单编号 | 1375616312958 |
| 更新时间 | 2025-09-30 17:28:46 |
| 订单类型 | 光伏能源 |
| 项目地址 | 山东滨州市沾化县滨海镇 |
| 总面积 | 20000.00㎡ |
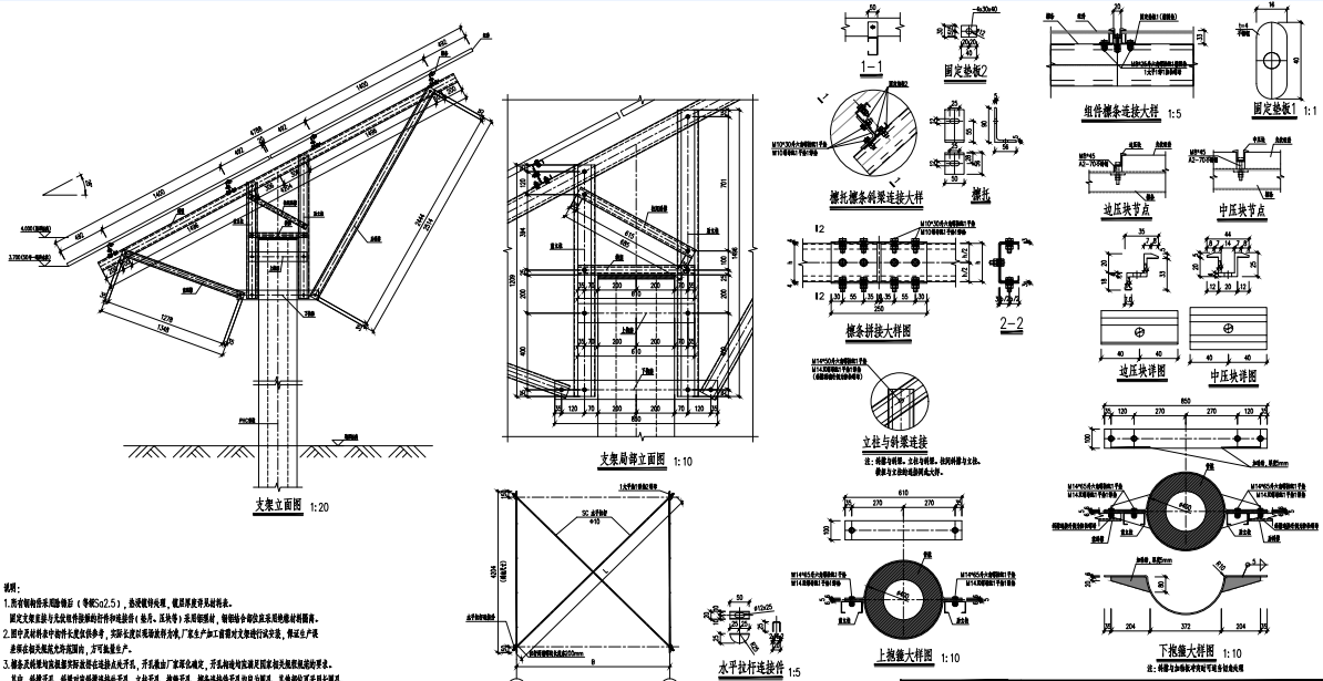
| 项目描述 | 1、山东滨州平地光伏发电项目,工程量有150兆瓦,采用720异质结光伏组件,独立桩,桩高 2.7米左右,一组52片,吃住自理,管保险脚手架,施工方负责装板支架和拉筋,年龄不能超过55岁 2、已经开工了,随时可以进场,进场无费用,第1个月结85%,第2个月100%滚动式,只要汉族,请滨州就近的专业施工单位尽快与我联系,联系人:陈 |
| 询价区域 | 上海、江苏、山东、安徽、浙江 |
| 项目图纸及资料 |
山东滨州平地光伏发电项目_资料1.pdf |
| 项目图片 |
|




