首页 > 项目 > 山东德州住宅埋板安装项目

山东德州住宅埋板安装项目

总包发布
图纸审核
施工中
报价中
该项目包含以下需求/内容
项目描述
联系方式 该项目来源于钢构宝APP,联系业主电话请下载钢构宝APP,或咨询钢构宝客服4001392998/四零零--一三九--二九九八 https://www.zwggb.com
订单编号 1432355707637
更新时间 2026-03-30 16:45:24
订单类型 幕墙门窗
项目地址 山东德州市乐陵市工业园区
总面积 2000.00㎡
项目描述
1、山东德州住宅埋板安装项目,目前先做样板大概400块左右,后期还有2栋楼,都是两孔化学锚栓,施工方负责人工带工具,只用现场制作安装
2、材料已经到了,随时可以进场,工期比较紧,款项直接和我方对接,按工程进度结算,请在德州本地施工方联系我报价
询价区域 山东
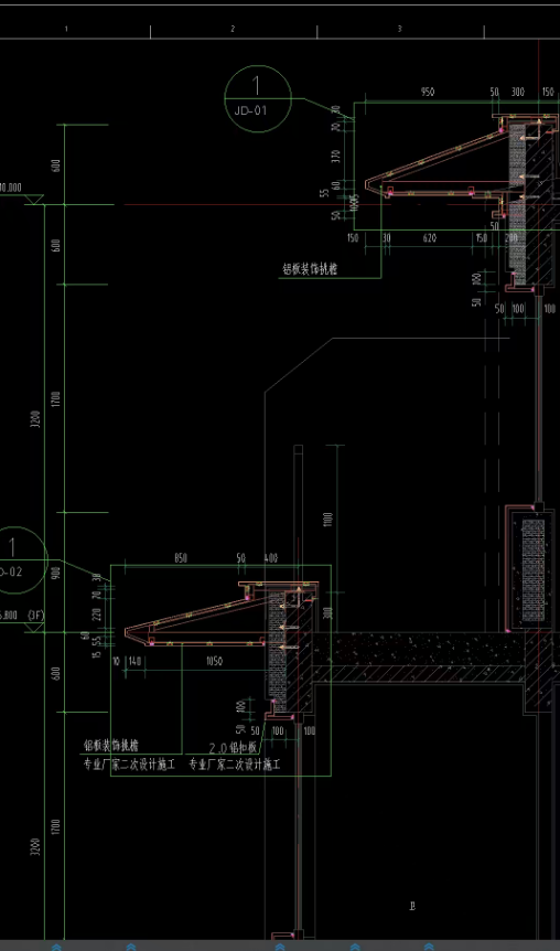
项目图片
山东热门推荐
山东济宁经开...
总面积:51980.00...
地址:山东济宁市高新...
筹建项目
系统审核
待开工
该项目包含:
建设工程
物流仓储
水处理设备
循环水设备
厂房设备
山东济南地库...
总面积:1000.00㎡
地址:山东济南市天桥...
总包发布
人工审核
施工中
该项目包含:
桥架工程
安装工程
建筑施工
建筑工具
地下工程
山东济南机场...
总面积:295816.0...
地址:山东济南市高新...
筹建项目
系统审核
待开工
该项目包含:
机场工程
建设工程
机械设备
物流仓储
仓库
配套设备
学校建筑
山东德州钢结...
总重量:3000.00T...
地址:山东德州市乐陵...
总包发布
现场审核
待开工
该项目包含:
钢结构
涂料
喷漆工艺
建筑钢材
建筑施工
地面工程
厂房设备
山东聊城20...
总面积:2000.00㎡
地址:山东聊城市东昌...
总包发布
图纸审核
施工中
该项目包含:
桥架工程
安装工程
地下工程
建筑施工
建筑工具
山东青岛保鲜...
总面积:7532.00㎡
地址:山东青岛市莱西...
该项目包含:
钢结构
安装工程
建筑钢材
仓储
材料采购
围护材料
防火工程
锅炉钢架
建筑施工
建筑板材
猜你喜欢
湖南长沙办公...
总面积:200.00㎡
地址:湖南长沙市天心...
总包发布
人工审核
待开工
该项目包含:
幕墙工程
办公建筑
墙体结构
玻璃
方钢
镀锌工艺
建筑钢材
热力工程
厂房设备
浙江金华30...
总面积:3000.00㎡
地址:浙江金华市金东...
总包发布
人工审核
施工中
该项目包含:
幕墙工程
玻璃
安装工程
墙体结构
防水工程
建筑施工
建筑工具
粘合剂
工程验收
山东青岛住宅...
总面积:5000.00㎡
地址:山东青岛市崂山...
总包发布
图纸审核
施工中
该项目包含:
幕墙工程
石材石料
住宅建筑
墙体结构
建筑施工
粘合剂
河北石家庄城...
总面积:131718.6...
地址:河北石家庄市桥...
筹建项目
系统审核
待开工
该项目包含:
墙体结构
改造工程
装饰装修
石材石料
防火工程
铝板
建筑施工
铝制品
建筑五金
建筑装修
黑龙江黑河办...
总面积:2000.00㎡
地址:黑龙江黑河市爱...
总包发布
图纸审核
待开工
该项目包含:
石材石料
办公建筑
建筑施工
电焊设备
建筑板材
建筑工具
湖北武汉收费...
总面积:1000.00㎡
地址:湖北武汉市蔡甸...
该项目包含:
铝板
铝制品
建筑板材
脚手架
屋面工程
建筑施工
设备构件