| 联系方式 | 该项目来源于钢构宝APP,联系业主电话请下载钢构宝APP,或咨询钢构宝客服4001392998/四零零--一三九--二九九八 https://www.zwggb.com |
| 订单编号 | 1431631166595 |
| 订单类型 | 钢材建材 |
| 项目地址 | 江苏泰州市靖江市城区 |
| 总重量 | 2.00T(过磅) |
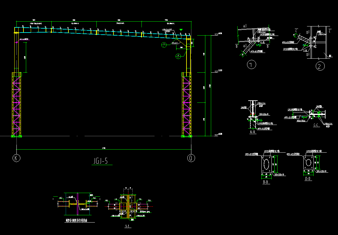
| 项目描述 | 江苏靖江厂房项目采购一批加固钢材 江苏靖江厂房屋面加固工程,现需采购一批加固材料,斜撑和系杆,材质是Q235B,详情查看下方图纸资料,含税运,请合适的生产厂家带价联系合作。 |
| 询价区域 | 全国 |
| 项目图纸及资料 |
江苏靖江厂房项目采购一批..._资料1.pdf |
| 项目图片 |
|




