| 联系方式 | 该项目来源于钢构宝APP,联系业主电话请下载钢构宝APP,或咨询钢构宝客服4001392998/四零零--一三九--二九九八 https://www.zwggb.com |
| 订单编号 | 1376506731715 |
| 更新时间 | 2025-12-12 11:01:03 |
| 订单类型 | 光伏能源 |
| 项目地址 | 内蒙古赤峰市翁牛特旗经济开发区 |
| 总面积 | 10000.00㎡ |
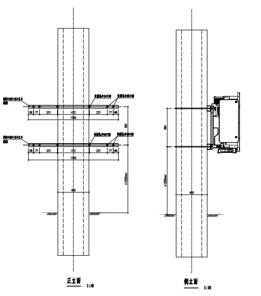
| 项目描述 | 内蒙古翁牛特旗市光伏组件安装计划 项目内容:工程量还剩三十多兆,组件采用竖向双排布置,布置形式:2*26;前桩高2m;详情可见施工图纸,施工方带随手工具现场安装飞机头,拉筋,檩条支架,板子等光伏组件,脚踩料。 已经开工随时进场,还有一个月工期,按进度日结80%,余款验收完结清,包住,详情面议,请内蒙翁牛特旗就近有意向的队伍联系我。 |
| 询价区域 | 天津、河北、山西、内蒙古 |
| 项目图纸及资料 |
内蒙古翁牛特旗市光伏组件..._资料1.pdf |
| 项目图片 |
|




