| 联系方式 | 该项目来源于钢构宝APP,联系业主电话请下载钢构宝APP,或咨询钢构宝客服4001392998/四零零--一三九--二九九八 https://www.zwggb.com |
| 订单编号 | 1374166052761 |
| 更新时间 | 2025-04-23 09:40:35 |
| 订单类型 | 钢构工程 |
| 项目地址 | 广东揭阳市揭西县霖都大道 |
| 总面积 | 1500.00㎡ |
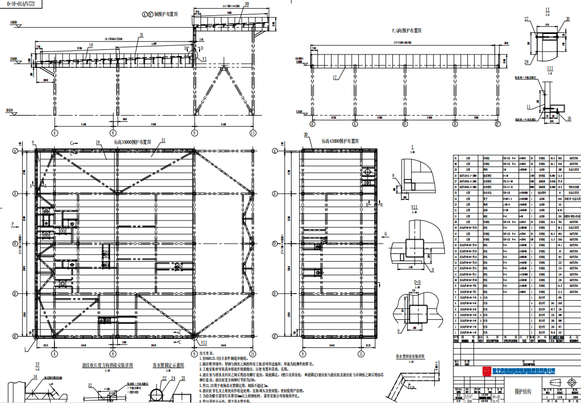
| 项目描述 | 1、广东揭阳屋面板围护工程,工程量有1200-1500平方左右,高度最高4.3米,架子已经焊好了,材料到位,随时可以进场。 2、材料由我方吊到屋顶上,其他设备、工具、劳保由施工方自备,屋顶、屋檐是1.5的米长板,打一圈瓦板,有彩钢板和波纹板,具体做法详见图纸。 3、款项和我方对接,完活结清,请揭阳就近的专业施工单位尽快联系我报价,联系人:丁。 |
| 询价区域 | 广东、广西、海南、台湾、港澳 |
| 项目图纸及资料 |
广东揭阳屋面板围护工程_资料1.pdf |
| 项目图片 |
|




